A soli 8 km da Alba, nella graziosa località Sant'Antonio, a pochi passi da tutti i servizi (supermercati, scuole e collegamenti autostradali) proponiamo in vendita esclusiva due ville unifamiliari in corso di costruzione.
Queste splendide abitazioni, progettate secondo i più alti standard energetici (classe energetica in progetto A4), offrono ciascuna una spaziosa autorimessa con cantina e centrale termica ed un comodo giardino privato.
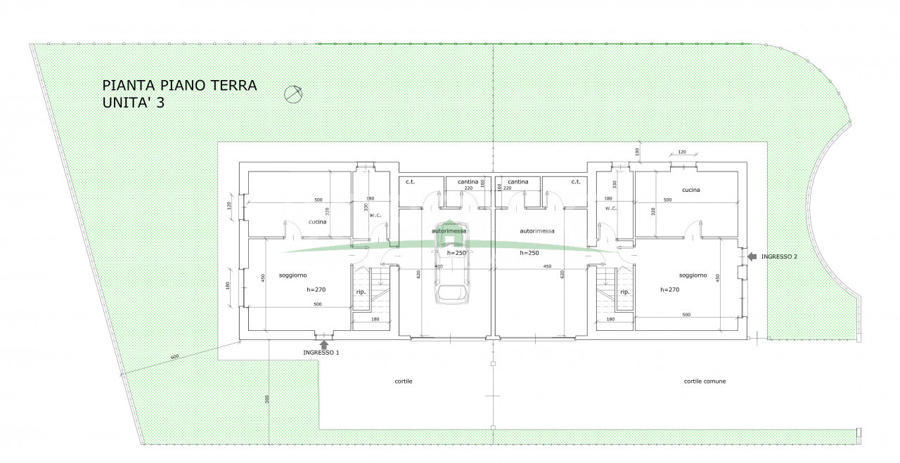
Ciascuna villa sarà così composta: al piano terreno si svilupperà la zona giorno costituita dalla cucina abitabile e dal soggiorno che, a richiesta, potranno essere trasformate in un unico grande ambiente openspace per cucina e salone, oltre ad un primo bagno e ad un pratico ripostiglio.
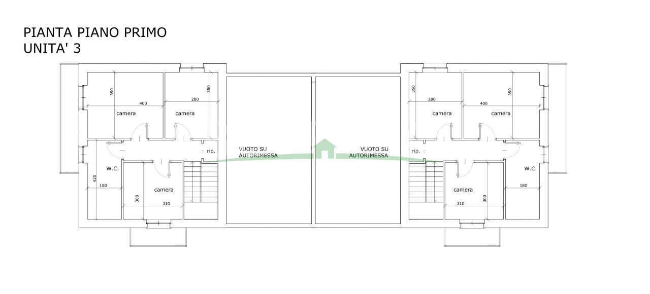
Una comoda scala interna collegherà il piano terreno al livello superiore destinato a zona notte che, caratterizzato dal meraviglioso tetto a vista in legno, ospiterà tre camere da letto, un disimpegno, un ripostiglio, un secondo bagno e due balconi.
Le ville, essendo attualmente in corso di costruzione, permettono agli acquirenti la possibilità di varianti interne in fase d'opera, nonché la personalizzazione delle finiture previste (pavimenti, rivestimenti bagni e porte interne).
I materiali costruttivi sono di alta qualità e mirati in special modo al risparmio energetico.
L'impianto di riscaldamento autonomo con pannelli radianti sottopavimento garantisce massimo confort nei mesi freddi grazie alla caldaia a pompa di calore ad alimentazione full elettrica. Inoltre, saranno montati pannelli fotovoltaici con potenza complessiva installata pari a 4 kW.
Non mancheranno neppure le predisposizioni per altri impianti fondamentali come la climatizzazione estiva, l'impianto di antifurto e quello per la Ventilazione Meccanica Controllata (VMC) .
VILLA A: € 289.000,00
VILLA B: € 275.000,00
Si precisa che l'indirizzo segnalato nell'annuncio (via e n° civico) non corrisponde alla reale ubicazione dell'immobile ma ne indica la zona con una buona approssimazione.
Per maggiori informazioni in merito all'immobile sopra descritto o per visionare eventuali altre proposte, vi aspettiamo con piacere presso il nostro ufficio sito in Magliano Alfieri (CN), Via IV Novembre, 37. Vi ricordiamo che siamo a vostra disposizione dal lunedì al sabato compresi, dalle 9.30 alle 12.30 e dalle 15.30 alle 19.30.
Potete inoltre visitare il nostro sito internet www.bordinoimmobiliare.it o contattarci direttamente al numero 0039 0173.266.042.
Ringraziandovi per l'attenzione, vi auguriamo buona navigazione!
LE INFORMAZIONI INDICATE SUL PORTALE NON COSTITUISCONO ELEMENTO CONTRATTUALE.
Queste splendide abitazioni, progettate secondo i più alti standard energetici (classe energetica in progetto A4), offrono ciascuna una spaziosa autorimessa con cantina e centrale termica ed un comodo giardino privato.
Ciascuna villa sarà così composta: al piano terreno si svilupperà la zona giorno costituita dalla cucina abitabile e dal soggiorno che, a richiesta, potranno essere trasformate in un unico grande ambiente openspace per cucina e salone, oltre ad un primo bagno e ad un pratico ripostiglio.
Una comoda scala interna collegherà il piano terreno al livello superiore destinato a zona notte che, caratterizzato dal meraviglioso tetto a vista in legno, ospiterà tre camere da letto, un disimpegno, un ripostiglio, un secondo bagno e due balconi.
Le ville, essendo attualmente in corso di costruzione, permettono agli acquirenti la possibilità di varianti interne in fase d'opera, nonché la personalizzazione delle finiture previste (pavimenti, rivestimenti bagni e porte interne).
I materiali costruttivi sono di alta qualità e mirati in special modo al risparmio energetico.
L'impianto di riscaldamento autonomo con pannelli radianti sottopavimento garantisce massimo confort nei mesi freddi grazie alla caldaia a pompa di calore ad alimentazione full elettrica. Inoltre, saranno montati pannelli fotovoltaici con potenza complessiva installata pari a 4 kW.
Non mancheranno neppure le predisposizioni per altri impianti fondamentali come la climatizzazione estiva, l'impianto di antifurto e quello per la Ventilazione Meccanica Controllata (VMC) .
VILLA A: € 289.000,00
VILLA B: € 275.000,00
Si precisa che l'indirizzo segnalato nell'annuncio (via e n° civico) non corrisponde alla reale ubicazione dell'immobile ma ne indica la zona con una buona approssimazione.
Per maggiori informazioni in merito all'immobile sopra descritto o per visionare eventuali altre proposte, vi aspettiamo con piacere presso il nostro ufficio sito in Magliano Alfieri (CN), Via IV Novembre, 37. Vi ricordiamo che siamo a vostra disposizione dal lunedì al sabato compresi, dalle 9.30 alle 12.30 e dalle 15.30 alle 19.30.
Potete inoltre visitare il nostro sito internet www.bordinoimmobiliare.it o contattarci direttamente al numero 0039 0173.266.042.
Ringraziandovi per l'attenzione, vi auguriamo buona navigazione!
LE INFORMAZIONI INDICATE SUL PORTALE NON COSTITUISCONO ELEMENTO CONTRATTUALE.
Mappa
Contattaci
INFORMAZIONI EXTRA
AMBIENTI
| Soggiorno | |
| Cucina | |
| Poggioli/balconi | 2 |
| Giardino | |
| Cantina | |
| Garage | 1 |
LIVELLI & COMFORT
| Livelli | Piano terra , Primo piano |
| Pannelli fotovoltaici | |
| Predisposizione aria condizionata | |
| Riscaldamento autonomo | |
| Riscaldamento a pavimento | |
| Riscaldamento termopompa | |
| Animali ammessi | |
| Ingresso indipendente | |
| Numero accessi carrai | 1 |
| Porta blindata | |
| Predisposizione allarme |



